摘要:位于法国的 Tetrarc 建筑事务所日前透露他们为雷恩音乐学院设计的新项目,旨在成为新城市项目的基石,建筑长是一个长15米的立方体,它的屋顶被切割成了优雅的曲线,如同雕塑一般。

雷恩音乐学院设计方案
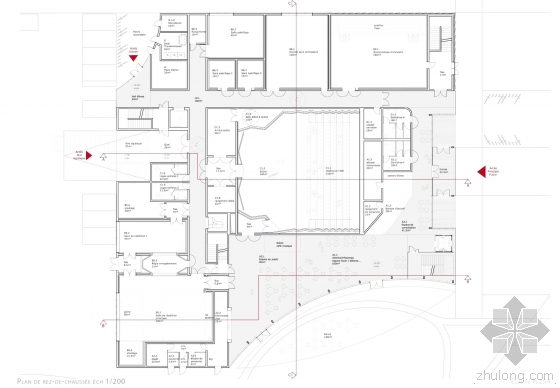
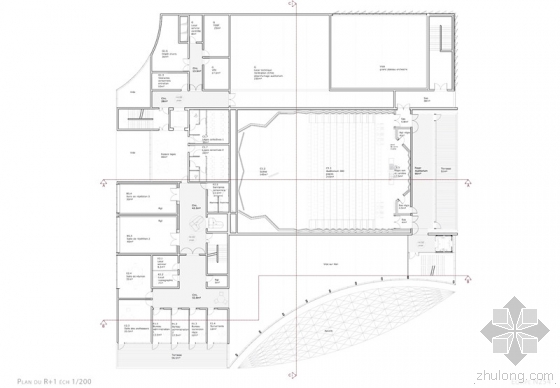
该文化设施立面主要包括了五项功能,音乐活动空间、礼堂、舞蹈剧场、管理空间,和一个地区高级音乐部门。

雷恩音乐学院设计方案

雷恩音乐学院设计方案

雷恩音乐学院设计方案
项目位于城市的西边,靠近萨格勒布广场,设计师通过四个独立形状的木制和玻璃外墙以及波状形的外形来与周围环境相呼应。此外,它的屋顶被称为“第五立面”,展示出了两种形式的正方体和球面相交而形成一个中央圆形花园。提供礼堂位于建筑的中央,上面覆盖着帆布,样式华贵,作为音响效果之用。

雷恩音乐学院设计方案

雷恩音乐学院设计方案
“该空间具有优美的音乐效果,室内为音响效果做了精细的设计。面板的几何形状是根据埃及金字塔形状进行的和声处理。”礼堂的屋顶设计成了公共园林空间。建筑序列和顺序是该提案的另一个主题。里面的空间是彼此重叠的,享有外部公共空间。长长的走廊形成了集会的空间。音乐学院将会创建自己的文化现象,并将它自己融入到雷恩的城市结构中。

雷恩音乐学院设计方案

雷恩音乐学院设计方案

雷恩音乐学院设计方案

雷恩音乐学院设计方案

雷恩音乐学院设计方案





























































































































































































































































