摘要:「有春」住宅位于台南市归仁区,基地四周有农田、传统合院民宅、小工厂以及快速道路及高速铁路等。

女富豪的“有春”深闺
「有春」住宅位于台南市归仁区,基地四周有农田、传统合院民宅、小工厂以及快速道路及高速铁路等。设计概念为:1.将业主讲求独特隐私性的个人生活空间与特殊开放性的友人寄宿空间加以融合并体现于建筑空间设计中。2.将钢构、金属板、混凝土与红砖结合,以传统建筑的构架形式以及空间秩序为出发点重新诠释现代住宅构造。3.呼应周围环境,以开放姿态面对邻近合院住宅,以防御姿态面对高速道路及铁路。4.采用雨水回收及太阳能发电等系统,以增进建筑的可持续性。

女富豪的“有春”深闺
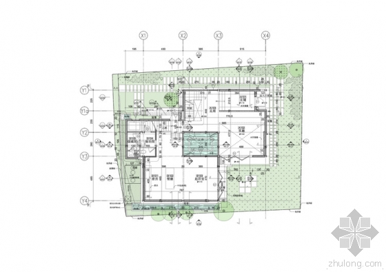
本案位置坐落于台湾,台南市归仁区,委托的业主是与我们年纪相仿的女性企业家。基地是一个三合院建筑的一半土地,两面临路的角地;西侧台39线为八线道计划道路,也是高铁行经道路,南侧为六米现有巷道,东侧邻地便是原三合院建筑的另一半,北侧邻地则是一个完整的三合院。业主希望在此兴建自己的住宅,并且,有感于全球气候变以及雨水再利用等类防灾建筑的要求与想法。于是我们试图以设计响应这样的环境条件。

女富豪的“有春”深闺
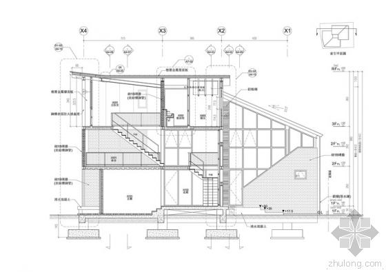
基地所在位置原为农业型聚落,经时代变迁移入局部工业活动而产生许多小型工厂,而近年完工的高速铁路穿越后,使其交织着越来越明显的新与旧、传统与科技、安静与速度等对比性特质,这些特质塑造了独特的地域性格。因此,我们一方面效法台湾传统建筑中构架与承重结合的构造系统(木构造与砖构造),并加以转化为结合现代钢构造与砖构造,一方面也运用这样的结合希望产生独特的建筑形式,借以象征环境的两面特性。

女富豪的“有春”深闺
另外,因应南台湾日照充足但夏季炎热的特性,我们试着运用屋檐、门窗系统等建筑元素,透过垂直水平的空间配置手法塑造良好的遮阳及通风环境;设置太阳能发电系统之屋顶单元倾斜角度经过刻意安排,以取得最大的日照发电效率。

女富豪的“有春”深闺
“以空间布局演绎居住者的生活特质,以平凡材料构筑不平凡的建筑形式”。我们将一个人居住必须具备的最基本空间视为此设计的主轴,也是一个人居住所具备的最小值;为来访的客人所预备的非天天使用的空间,则为衍生而出的最大值。

女富豪的“有春”深闺
一开始我们以两个一样的方形作为本案平面的主要构成。东北角的方形(暂称A栋)提供给业主一个人使用,是三层楼高的量体;另一个二层楼方形体(暂称B栋)则供给家人朋友来访时使用。两个方型叠合处虚化成为天井,仅在天井北向留下约一米二宽的走道成为唯一室内联通两栋间的路径。一个人居住最基本需求的盥洗、睡眠空间集中在A栋三楼,楼层往下是阅读及娱乐的空间,无客人来访时B栋几乎是不使用的。

女富豪的“有春”深闺
本案试图藉由空间的秩序表达居住其中的主与客的关系,以及空间的纯粹度。例如厨房与用餐空间设定为一人时是不需要的,因此A栋不设置,而是设置于B栋一层,这两个空间成为人与人互动联系感情时才去使用的空间。又例如为维持业主个人空间隐私性,其寝室空间设于三楼与客人使用的B栋联系仅限于天井北向走道。

女富豪的“有春”深闺
除满足住宅机能外,我们希望透过建筑传递几个信息,一是清楚的构筑样貌,二是材料特质的合理彰显。

女富豪的“有春”深闺
构造有以下特点:a. 2楼以上全部结构楼地板采用降板方式镶嵌在梁结构的框架单元中,此作法产生的效果是全部外墙可在不经刻意修饰的情况下完整呈现纯粹的梁柱构成样貌,室内地板也刻意呈现了钢梁的存在,与木质地板形成几何图案,成为2楼及3楼地板的特色。

女富豪的“有春”深闺
b.在钢构造系统中存在一层轻巧的次构造以及止水细部,砌砖部分可透过与这些构造镶嵌叠砌而使结构成为一体,在力学及结构上达到合理连贯,在视觉上却对比地让感觉沉重的材料呈现戏剧化的轻盈感。

女富豪的“有春”深闺
c.金属板外墙与结构间也刻意镶嵌,使主体钢构造完整外露,光滑的质感与朴实粗旷的砖墙在室内及室外都形成有趣的对话效果。

女富豪的“有春”深闺
d.室内几无包覆修饰性材料,连天花板亦予以省略,使全部管线在外露的安排下必须与结构体共同承担视觉完成度的美感责任,而此一作法同时使更换及维修具有高度的便利性。

女富豪的“有春”深闺





























































































































































































































































